Sulzfelder  Bürgerbahnhof  
  Die Eventlocation zum Feiern, Tagen und Kochen im Kraichgau


     

    

Büroräume Obergeschoß

        

        

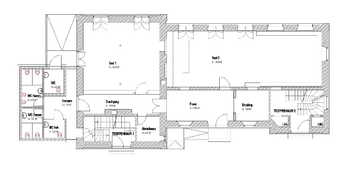
Im Erdgeschoss befindet sich der große Eventsaal und der kleinere Saal (Vinothek).

Beide können für Feiern und Tagungen getrennt, aber natürlich auch komplett genutzt werden.

- ca. 55 Sitzplätze bietet der große Eventsaal,

- ca. 25 Sitzplätze der kleinere Saal (Vinothek)   

Räume im Erdgeschoss